Welcome to 104 Maple Street, Weehawken

Property Specifics

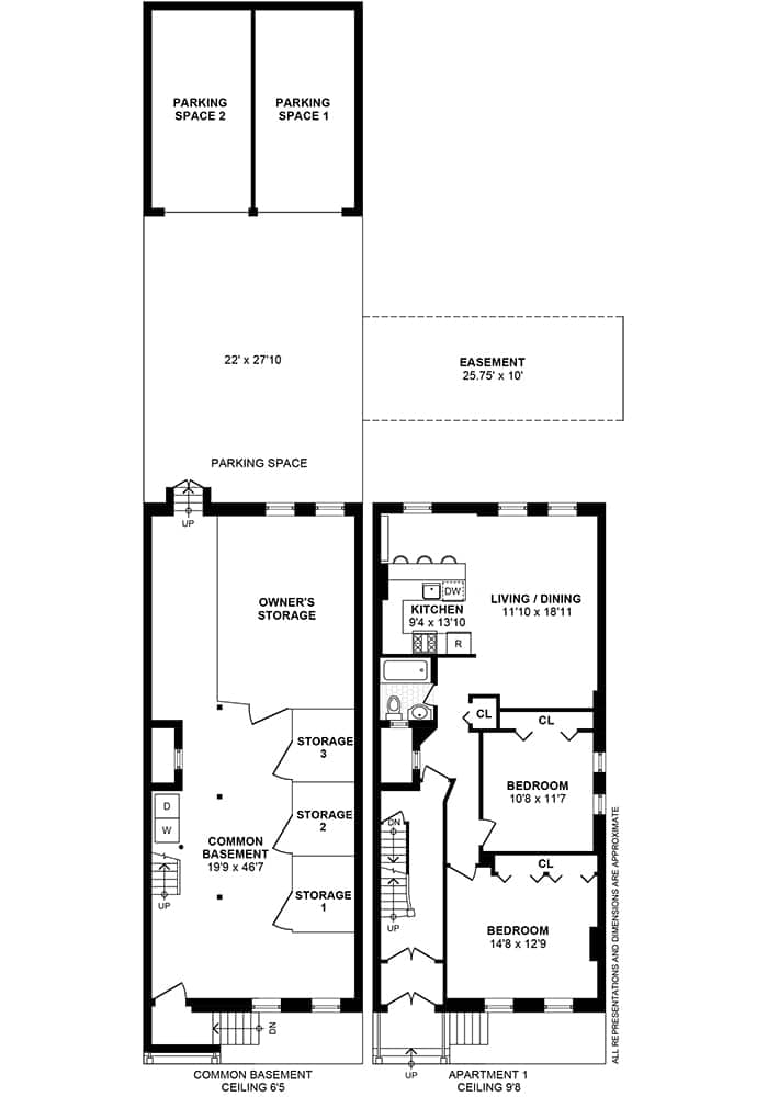
Renovated three-family historic brick row house on a large lot with parking for three cars. This property is ideally located on a quiet residential street in southeastern Weehawken atop the Palisade cliff-line, two blocks south of RT-495 offering easy bus access to NYC via the Lincoln Tunnel and only a four minute drive to Hoboken. This meticulously maintained building offers approximately 4,000 square feet including three, two-bedroom, one-bathroom apartments and a full basement with four storage cages, commercial grade coin-operated laundry and mechanicals. Parking for three cars is located behind the building including a two-car garage and one surface parking space. Offering original character as well as modern upgrades, all three apartments have central heat/AC, high ceilings, hardwood floors, separate utilities and are connected by the original winding stairway with the original curved mahogany bannister and a large skylight above. The distinctive and handsome restored façade has brownstone and unique bricks accented by double entry doors, decorative ironwork, historic-style double hung Marvin windows and an original cornice.


Floor Plans

Work With Us

With an insider’s view of the market, we know where to find properties that match your wish list and lifestyle. When it’s time to sell, Hudson Realty Group’s comprehensive marketing and organizational expertise help price your property for maximum financial return.

Follow Us on Instagram